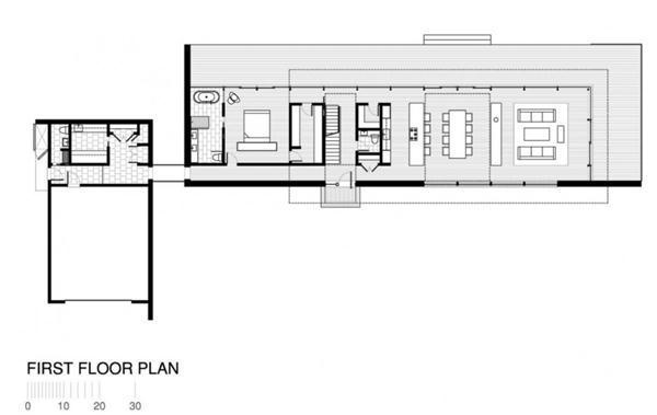
Here are luxurious home design with beautiful lake and pine Forests view – Buisson Residence. Houses the work of architect Robert M. Gurney known as Buisson Residence. With very strategic location, an appropriate place in Virginia that overlooking the Anna lake and surrounded by pine forests. You have to travel down the winding and pine forests of this world to find this paradise. House with white paint and the lights from inside the warm house are very compatible with the silence of the home environment. This L-shaped house is also used as one element mahogany walls makers. This makes the house look more integrated with nature. Although the design of the main concepts of the house looks modern, yet blend with nature and the environment remain unnoticed. Use of wide glass window in addition to functioning as a regulator of light also to frame the beautiful scenery outside. Landscape of the south side of the lake that looks stunning successfully captured by this Buisson residence. Some walls and a modern house exterior is covered with copper to strengthen the use of large glass. The architect also carefully take into account the anticipated excessive heat in summer but allow sunlight can still get into during the winter. He also deliberately designed the use of sloping roofs and walls that are useful to deflect the north wind and the water dripping from the storm. Both exterior and interior of the house taken into account and well laid out so the house looks perfect. This comfortable residence with incredible scenery can pamper you throughout the year. This house can be a source of inspiration for those of you who like modern home design but still want friendly and blend with the natural environment looks.
Home
»
BEAUTIFUL HOUSE
»
HOUSE-INTERIOR DESIGN
» Luxurious Home Design with Beautiful Lake and Pine Forests View – Buisson Residence
Subscribe to:
Post Comments (Atom)
















0 comments:
Post a Comment